整装案例赏析 | 速来围观!180㎡现代整装空间,这波设计我给满分!
- 分类:产品动态
- 作者:
- 来源:
- 发布时间:2023-04-13 08:00
- 访问量:
整装案例赏析 | 速来围观!180㎡现代整装空间,这波设计我给满分!
- 分类:产品动态
- 作者:
- 来源:
- 发布时间:2023-04-13 08:00
- 访问量:
中式之美,风雅隽秀
现代艺术,高雅精致
二者巧妙相融
便碰撞出一种全新的生活格调
本案业主偏爱传统文化,相较于过于厚重的传统中式,他更喜欢清雅的现代中式。
良木设计师充分了解到客户的需求,经过多次沟通后,选择了北美黑胡桃作为定制主角,兼糅传统文化积淀与现代艺术手法,让这个新家呈现出亦古亦今的空间氛围,实现风格与功能性的完美结合。
项目名称:青特汇豪官邸
项目规模:180M²
项目户型:大平层
设计风格:现代中式风格
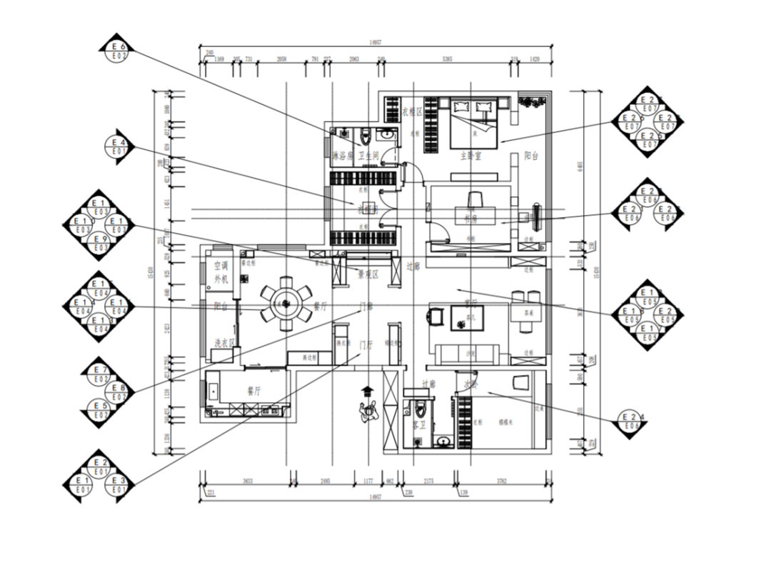
原始户型图
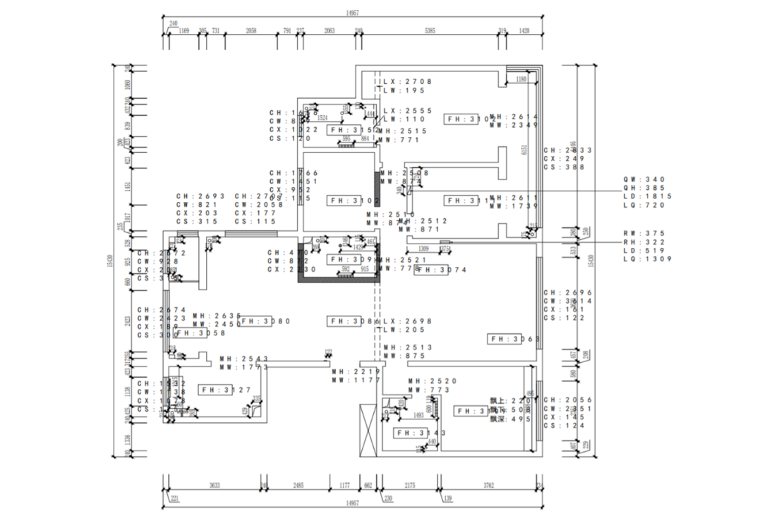
设计户型图
经过二轮设计讨论后,与业主定好最终布局:
✔取消客厅中间卫生间,客卫改公共卫生间。
✔门厅效果图深化
✔冰箱移到餐厅,增加餐边柜以加大厨房储物功能。
✔玄关为重点
整装设计方案
首先业主要求把窗户全部更换
✔把手下降15公分,原窗用起来过高
✔全部采用中间大玻璃
✔安全第一
入户正对方向做了景观。昂首,一轮圆月静静悬挂在前方,圆月的寓意是团圆、永恒,它象征着事情的圆满、亲人的团圆、家庭的美满。
圆月下方选择了松树,设计师们想表达业主一家坚定、正直,朴素的品格。同时松树也代表了健康与长寿。下方的山和胡桃木格栅的搭配让整个景观更有层次感,简约而素雅。
入户右手边则增加了同心圆设计,从客厅及玄关都可以看到,让整个玄关更通透一些。此处设计也是与业主夫妻双方接触后给我们深深的感触。故用同心圆祝福相爱的俩人家庭和睦,永结同心。
整个玄关的点睛之笔在于中间的4个如意门,一步一如意,万事皆如意。不仅解决了房屋进深过宽的问题,从风水寓意上,为整个房间增加了灵魂。
入户左侧建墙做玄关柜子,但是我们留出了一个框景的手法,放入一玉莲。
自此把整个玄关设计细节组合,给人一种苏州园林的构景艺术。
以小巧、自由、精致、淡雅写意见长,且注重文化和艺术的和谐统一。使人“不出城郭而获山水之怡,身居闹市而得林泉之趣”,达到“虽由人作,宛自天开”的艺术境地。
门厅进门左侧设计了衣柜鞋柜,右侧矮柜鞋柜,加上门外鞋柜,满足门厅储物功能,并且使用顺手,尺寸合适。
客厅效果图
客厅采用了良木黑胡桃系列沙发,茶几,电视柜,茶桌。阳台两侧做了通顶储物柜,电视墙左侧博古架放置收藏品。
沙发背景墙左上角与右下角对称的黑胡桃方形木板,从上到下一笔相连,缠缠绵绵永不分离。
利用玄关左侧博古架,背面做了长虹玻璃,把柜子划分到餐厅,成为餐边柜一部分。玄关处正好东西向建墙,做了衣帽柜。另一测我们可以用来做厚高柜,放蒸烤箱及冰箱,这样定制家具整体尺寸上没有一点将就,非常舒适。
保留了餐厅落地大窗,窗户湖景尽收眼底,窗左右两侧做酒柜,包住了管子,也最大利用了空间。以上工作为了把餐厅中间空间做的方正,放上心仪已久的新款圆桌。
餐厅厨房效果图
一进书房满满的书海架,以及透过阳台八角门可以看到古琴,满满的文艺范儿画面感扑面而来。
书海浩瀚,惟愿泛舟一生,一杯好茶、阳光、古琴,这些汇集到一起,便是我们对业主书房最好的诠释。
主卧及衣帽间效果图
同样采用黑胡桃衣柜,床以及用黑胡桃包套,做了一个月亮门。
同时屋里做了起夜用的灯带,利用辅助光,尽量不影响伴侣睡眠。
良木家具软装效果图鉴赏
将精致之美注入东方古韵
在坐卧之间找到巧妙平衡
碰撞出一种全新的生活格调
置身其中,舍去喧嚣浮华
回归质朴,享受畅意人生
扫二维码用手机看






